
House For Two Brothers
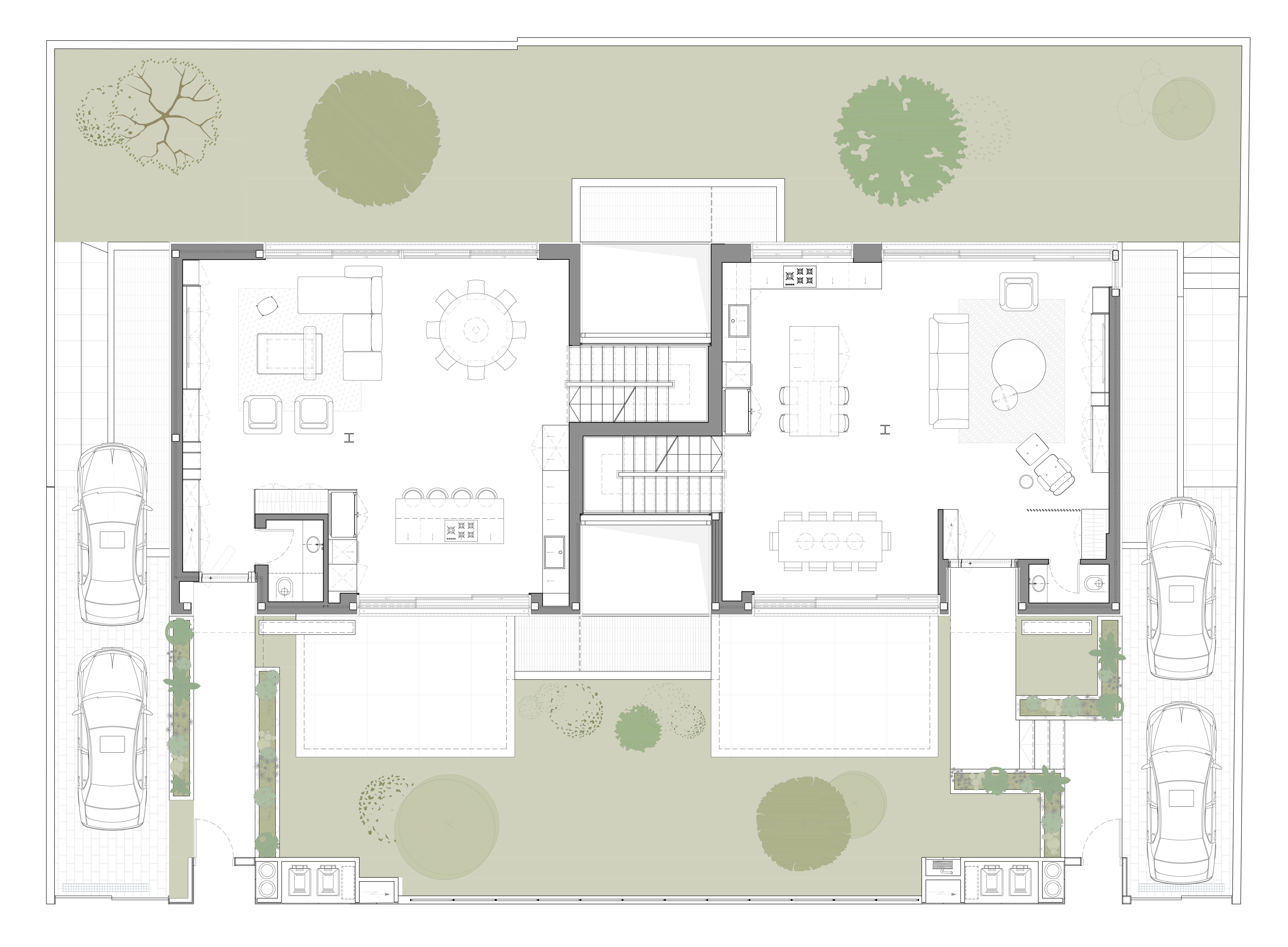
A house for two brothers. Two siblings purchased the plot together, having grown up in the neighborhood, they wished to raise their family in the area, and the opportunity to buy a plot on which two houses could be built arose. From this beginning the design opportunity was created, we wished to create deep patios which would allow excellent light to penetrate the basement and act as small underground outdoor spaces, but this could not fit on the site together with the building mass. Because of the special relationship between the clients we had the opportunity to propose an unorthodox division of the plot into two. The problem of the patios is solved by placing one at the front of the plot and one at the rear. No “straight” parti wall divides the site, the division is instead given by the sunken patios and the soft vegetation which is planted around them. This initial idea drives the design, the vertical circulation follows the sunken patios and glass curtain walls accentuate the steel staircases while bringing light inside. The curtain wall in turn divides the built mass into two clear entities, and the difference in positioning of rooms on the upper floors allow for a similarity but distinction between left and right houses, creating a whole, but distinguishing one “brother” from its adjacent sibling.













