
linear house
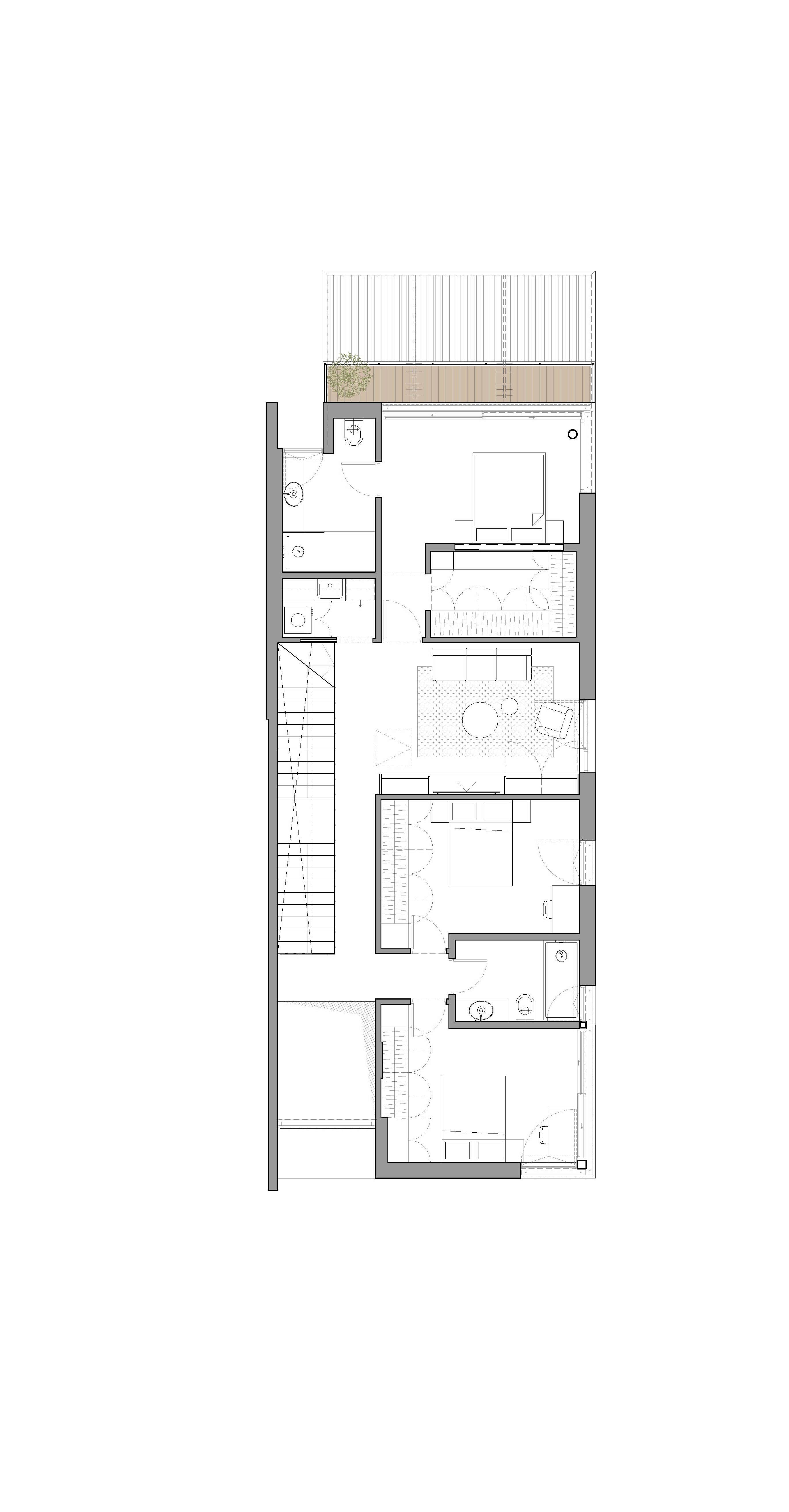
The neighborhood is at the edge of the park and the city, defined by its familiar low rise houses which share a diving wall between each two adjacent plots. Half of the existing one story house was purchased by the owners a few years back, with the dream of one day transforming it into a modern family home. Thus, from the typology of the site, the dividing or “parti” wall between the two houses and the elongated plot becomes a generator for the design. In order to maximize the gardens around the house, it is entered directly from the street along the parti wall which in-turn organizes all of the circulation in the house. A double height entrance, a black steel staircase and a skylight above, highlight this central axis from which the spaces of the house grow. As you enter the house you are greeted by long view above and directly in front of you towards the back garden, revealing the length of the site and the public functions on the ground floor. The façade is articulated as a white envelope with various openings in the mass which are separated deliberately from the accented dividing wall with the neighbor. Full height windows define the public areas, and smaller openings which give rhythm to the façade, also give privacy to the various bedrooms and washrooms. Simple and low-lying vegetation was chosen for the garden as the owners wish to see the surrounding trees grow with them on site as they slowly expand their family and become rooted in the house.













